Property with an approved high-end villa development in the southwest

Property with an approved high-end villa development in Cala Vinyes

A building lot is for sale in the southwest of Mallorca, including a fully developed architectural plan and a building permit that has already been granted.

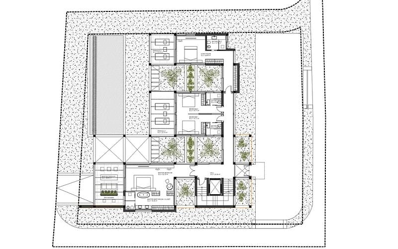
The project features a modern villa with clean architectural lines, spacious layouts, and seamless transitions between indoor and outdoor areas.

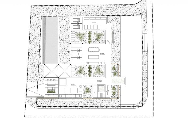
The plans include spacious living areas with floor-to-ceiling windows, multiple terrace levels, a spacious pool area, and a rooftop terrace with ocean views. The layout is both functional and very spacious, with a clear separation between living and private areas.

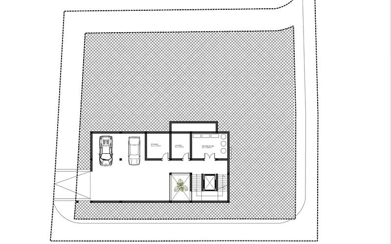
The basement offers additional space for a garage, utility rooms, and custom features such as a fitness area or spa.

The design ensures a high-quality execution with a focus on materials and attention to detail. The use of carefully placed natural stone surfaces is intended to enhance the project and underscore its quality.

The location in Cala Vinyes offers peace and privacy, yet is just a short distance from Palma, beaches, golf courses, and marinas. Access to the property is easy and convenient.

This opportunity is ideal for investors and developers, as well as private buyers who wish to take over an approved project without going through the planning phase and bring it to life according to their own vision.

Optionally, the project can also be completed and handed over as a turnkey villa.

Lot size: approx. 1,311 m²
Built-up area (above ground): approx. 455 m²
Basement: approx. 233 m²
Pool: approx. 57 m²

Project:

  • Modern villa with clean architectural lines
  • Spacious, open floor plan
  • Seamless transition between indoor and outdoor areas

Breakdown:

  • 5 bedrooms
  • 5 bathrooms
  • Open-concept living and dining area
  • Several terraces
  • Roof terrace with a view of the sea

Additional areas:

  • Basement with garage
  • Utility rooms
  • Flexible use (gym, spa, etc.)

Special features:

  • Building permit already issued
  • For sale as a plot of land with a development project
  • Can be implemented immediately
  • Optional turnkey implementation available

 

Object ID:SV-0214
Available from:Immediately
Purchase Price:€1,200,000
Bedroom:5
Bathroom:5
Living Space:455 m²
Lot Area:1,300 square meters
Total Area:680 m²
Cellar area:233 square meters
Lifestyle:Luxury villa
Elevator Garage Garden Balcony Patio Fitted kitchen Basement Pool Storage room Air conditioning